
Proyecto
Biblioteca Las Tablas – Arquitectura Sostenible

Cliente
COAM

Ubicación
Barrio de Las Tablas, MADRID (ESPAÑA)

Servicio
Arquitectura

Año
2019

Inversión
3,6 mill €

Software
Lumion, Autocad, Rhinoceros y Adobe

"Por Allí Resopla"
Por Allí Resopla es el nombre del proyecto de arquitectura sostenible que presentamos al concurso “Tres Bibliotecas Municipales en Madrid” de la Oficina de Concursos del COAM (Colegio Oficial de Arquitectos de Madrid), con el cual obtuvimos la Mención Honorífica. Un proyecto realizado de la mano de los arquitectos Nieves Mestre y Eduardo Roig y con el apoyo de Alejandro Bosqued Navarro, experto en sostenibilidad y eficiencia energética en edificación.
Un gran proyecto singular y arquitectónico para la futura construcción de la Biblioteca Municipal de Las Tablas, en el barrio madrileño del mismo nombre. Una propuesta cuyo nombre evoca a la novela de Moby-Dick, a través de la morfología de la pieza arquitectónica y que además, propone una solución bioclimática basada en estrategias pasivas, y que se define como un pabellón solar.
Estrategia urbana
La estrategia urbana se adecúa a los requisitos de la ordenanza, priorizando una geometría solar óptima. Se propone una nueva alineación orientada a Sur, pero claramente separada del linde con la Escuela infantil para minimizar sobre ella la obstrucción solar. El resto de retranqueos, de 5 metros, se desdoblan con el propósito de dinamizar el espacio público libre en torno a este equipamiento, buscando vistas cruzadas y habilitando zonas estanciales intermedias. Un borde blando articula el perímetro de la biblioteca y la alineación oficial.
La población de las Tablas, de 30 a 45 años y niños menores de 0 a 14 años mayoritariamente, comienza a moverse en bici y patinete, artículos que compran por Internet, pues es el barrio que más pedidos online hace de España.
La ubicación marginal, no equidistante, de la dotación en el barrio de las Tablas insta a proponer una solución de aparcamiento de este tipo de vehículos con muy alta capacidad.

Solución bioclimática
El edificio se define como un “pabellón solar”, apoyado estructural y termodinámicamente sobre un muro de alta inercia que lo abriga en su fachada norte. Este muro, se convierte en un muro radiante, alimentado por un pequeño campo de captación solar térmica de 16m2 en cubierta.
- Estrategias pasivas: Una fachada captadora optimizada con los huecos acristalados necesarios y poca inercia térmica, permite la ganancia solar directa e indirecta en orientación sur, según la cota. Estrategia que se complementa con acumulación y amortiguación térmica en una fachada opuesta muy masiva. La estrategia “defensiva” respecto al verano madrileño se apoya en la ventilación natural a través de patios y nocturna y las protecciones solares.

- Soleamiento, geometría solar óptima: Para aprovechar al máximo las estrategias planteadas se propone una orientación con las fachadas longitudinales N-S y las transversales E-W. El edificio se sitúa en el solar, de manera que su fachada sur no llegue a ser sombreada por el obstáculo que suponen los edificios residenciales del entorno. El día más desfavorable, sería el 21 de diciembre a las 14:15.

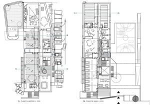
Tiempo y programa
Todo el programa se desarrolla en dos plantas bajas superpuestas, cada una de ellas accesible desde una las calles que limitan la parcela por Este y Oeste. El programa de parking e instalaciones o espacios no calefactados, se plantean como una crujía exterior, de forma que no penalicen climáticamente la envolvente del edificio. En el proyecto se propone una alternativa opcional que minimice esta zona y la convierta en aparcamiento en superficie, opción que se ha demostrado ya como más sostenible en términos de funcionalidad urbana y climática.

- Gestión del tiempo abierto: Se concibe el acceso por la calle Eunate (planta baja) para las estancias consideradas centrales al programa de biblioteca -las de uso de mañana-. La planta alineada con la calle Castillo de Candanchú contiene el programa definido en el pliego como “Bajo rasante” y el resto de estancias asociadas al centro cultural, se prevé un uso predominante en horario de tarde. Este empaquetamiento programático en franjas de uso de “mañana” y “tarde” permite una optimización de los consumos de acondicionamiento. La demanda a primera hora se concentra en la planta principal (menos de la mitad del volumen); a medida que pasan las horas, la inercia térmica del edificio participa del atemperamiento supeditado a las cargas de ocupación para abastecer la demanda en horario de tarde (correspondiente al volumen total).


Envolventes
Se plantea un sistema constructivo basado en la modulación y la repetición, la sistematización y la prefabricación. De esta forma el proyecto es capaz de minimizar los recursos energéticos del proceso constructivo y reducir el tiempo y el precio de la obra. El ambiente es doméstico. La propuesta divide el programa en dos edificios, reduciendo la escala de intervención: una crujía para los programas de gran superficie y otra para los locales de menor dimensión.

e1.
Una primera piel de policarbonato macizo ondulado permeable visualmente protege del viento, la lluvia, y crea espacios generosos con abundante luz solar. Gracias al efecto invernadero en invierno y a la ventilación natural en verano, estos espacios suponen verdaderas zonas de transición térmica, que precalentarán el aire en invierno y darán sombra en el periodo estival. Esta piel de policarbonato deja pasar la radiación solar generando efecto invernadero y este calor es almacenado en los elementos constructivos (forjados, volúmenes interiores) de alta inercia térmica. Durante los periodos de sobrecalentamiento, la envolvente se protege de la radiación solar gracias a estores enrollables de láminas de madera maciza, y aperturas batientes en fachada y en cubierta generan una ventilación natural por convección que refrescará el aire interior.
e2.
La segunda piel se concibe como envolvente pasivo para los locales calientes (U=0.15W/m2K). Se trata de una estructura de muros y forjados prefabricados, formados por un esqueleto de madera de abeto y tableros de madera maciza, con relleno de aislamiento de fibras de madera (λ=0.038W/mK), en un sistema estanco a la lluvia y al vapor. Las aberturas, más contenidas en número y superficie son concebidas con marcos fijos y ventanas aislantes con rotura de puente térmico y triple acristalamiento aislante con Argón (Ug=0.6 W/m2K). Estos volúmenes prefabricados tendrán un revestimiento exterior e interior en paneles de triple capa en madera de abeto.
Presupuesto
- Movimiento de tierras: 36.769,54 €
- Cimentación: 165.524,39 €
- Estructura: 478.180,68 €
- Saneamiento: 110.350,32 €
- Albañilería: 735.668,80 €
- Cubiertas, aislamientos e impermeabilizaciones: 404.617,84 €
- Revestimientos: 110.350,32 €
- Solado: 110.350,32 €
- Falsos techos y acabados: 55.175,16 €
- Cerrajería: 147.133,76 €
- Carpintería interior: 165.525,48 €
- Carpintería exterior y protección solar: 220.700,64 €
- Climatización renovable y ventilación*: 110.359,35 €
- Fontanería: 147.133,76 €
- Electricidad e iluminación: 257.484,08 €
- Protección contra incendios: 73.566,88 €
- Pinturas y vidrios: 91.958,60 €
- Ascensor: 36.783,44 €
- Control de calidad: 73.566,88 €
- Gestión de residuos: 55.175,16 €
- Seguridad y salud: 91.958,60 €
Total 3.678.334 €
Apostamos por una arquitectura basada en el trabajo y la singularidad que huye de la estandarización e impersonalización de los espacios. Además, creemos en una constante indagación en las formas de habitar de la sociedad del futuro, proyectando espacios novedosos mediante la tecnología BIM más puntera.
¿Buscas un estudio de arquitectura diferente?
¿Buscas un estudio de arquitectura diferente?

























